The Pizarro Elevation D
The Pizarro Elevation A
The Pizarro Elevation B
The Pizarro Elevation C
Lifestyle
Interactive Map
closed now
Marble Creek Crossing
9017 Furman Drive
Austin, TX 78747
  • Mon: 10:00AM - 6:00PM
  • Tue: 10:00AM - 6:00PM
  • Wed: 10:00AM - 6:00PM
  • Thu: 10:00AM - 6:00PM
  • Fri: 10:00AM - 6:00PM
  • Sat: 10:00AM - 6:00PM
  • Sun: 12:00PM - 6:00PM

About The Pizarro I

  • square feet 2,033 - 2,105
  • stories 1
  • bedrooms 3 - 4
  • full bathrooms 2 - 3
  • half bathrooms 0
  • garages 2 (Front Load)
Owner's Suite
First Floor
Foundation Type
Slab
Home Type
Single Family Home

Pizarro I

Community Plan Info Description Title: Why You'll Love It Written Description

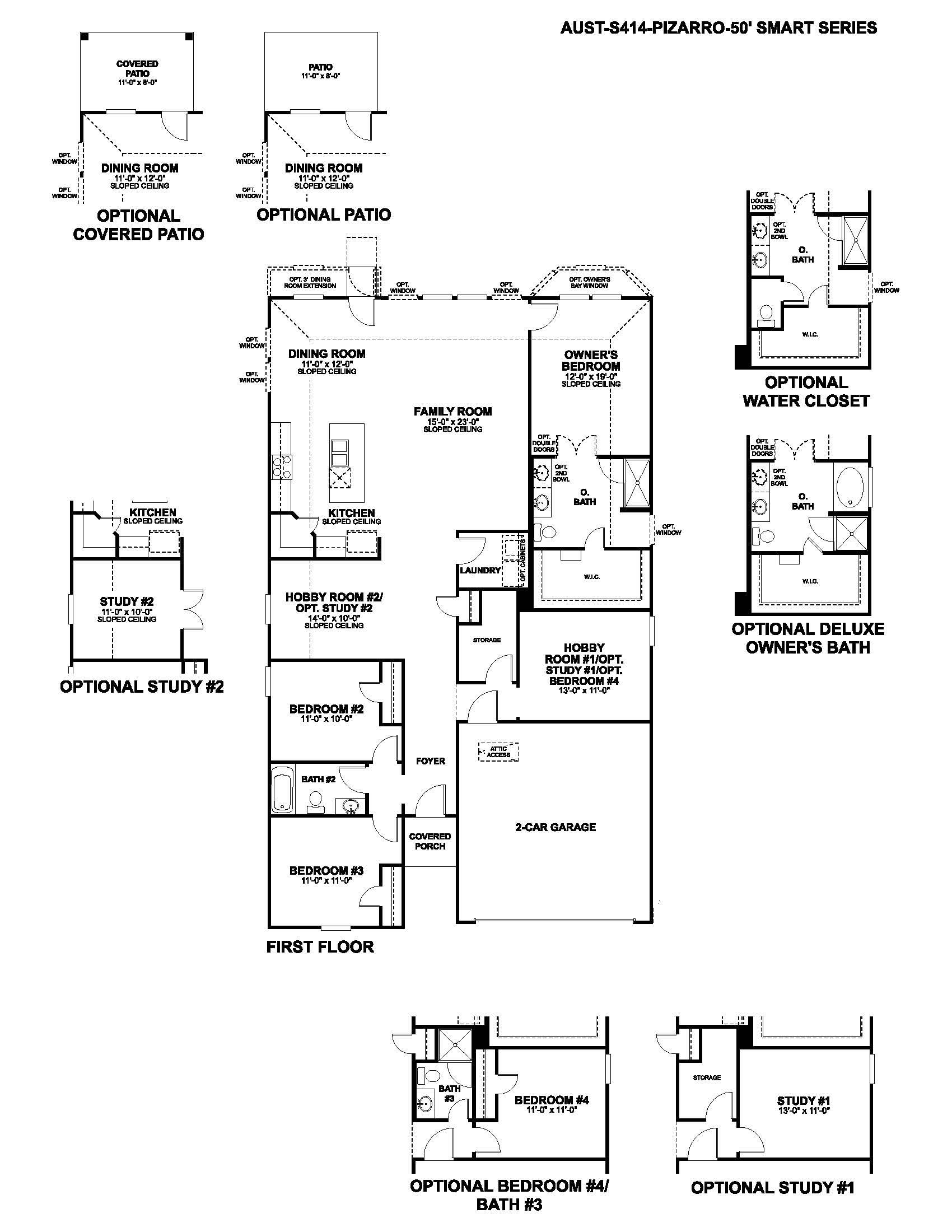
Make yourself at home in the Pizarro floorplan, the affordable and functional open-concept design you’ve been dreaming of. This Smart Series plan features 4 bedrooms, 3 bathrooms, a study, a 2-car garage, and 2,033 square feet of living space.

As you enter the spacious foyer, you will find two private bedrooms and a full bathroom tucked off the entry. The 4th bedroom and 3rd bath can be conveniently found farther down the foyer. Before entering the kitchen space, you will find a private study and laundry room. 

Continue into the open kitchen, dining area, and family room. Enjoy impressive included features throughout the kitchen such as granite countertops, a large kitchen island, and spacious upper and lower cabinets. Looking for even more space? Choose the optional covered patio, great for outdoor entertaining!

Enter the owner's retreat that is tucked at the back of the home, privately off of the family room. This bedroom features two large windows and plenty of natural light. Through double doors, enter your bath retreat, boasting a large walk-in shower, double vanities, private water closet, and a spacious walk-in closet. Here you also have the option for a separate soaking tub and walk-in shower.

Contact us today for more information on this exclusive Pizarro floorplan.

Description Teaser: Make yourself at home in the Pizarro floorplan, the affordable and functional open-concept design you’ve been dreaming of. This Smart Series plan features 4 bedrooms, 3 bathrooms, a study, and a 2-car garage, and 2,033 square feet of flowing living space. Virtual Tour URL: https://my.matterport.com/show/?m=CPYAoJPaMJN IFP Desktop URL: IFP Mobile Url: Floor Plan Images: Division Plan Info Divison Description Title: Why You'll Love It Division Written Description:

Make yourself at home in the Pizarro floorplan, the affordable and functional open-concept design you’ve been dreaming of. This Smart Series plan features 4 bedrooms, 3 bathrooms, a study, a 2-car garage, and 2,033 square feet of living space.

As you enter the spacious foyer, you will find two private bedrooms and a full bathroom tucked off the entry. The 4th bedroom and 3rd bath can be conveniently found farther down the foyer. Before entering the kitchen space, you will find a private study and laundry room. 

Continue into the open kitchen, dining area, and family room. Enjoy impressive included features throughout the kitchen such as granite countertops, a large kitchen island, and spacious upper and lower cabinets. Looking for even more space? Choose the optional covered patio, great for outdoor entertaining!

Enter the owner's retreat that is tucked at the back of the home, privately off of the family room. This bedroom features two large windows and plenty of natural light. Through double doors, enter your bath retreat, boasting a large walk-in shower, double vanities, private water closet, and a spacious walk-in closet. Here you also have the option for a separate soaking tub and walk-in shower.

Contact us today for more information on this exclusive Pizarro floorplan.

Division Teaser: Make yourself at home in the Pizarro floorplan, the affordable and functional open-concept design you’ve been dreaming of. This Smart Series plan features 4 bedrooms, 3 bathrooms, a study, and a 2-car garage, and 2,033 square feet of flowing living space. Division Virtual Tour URL: https://urldefense.com/v3/__https://my.matterport.com/show/?m=CPYAoJPaMJN__;!!MfVkewsW!GyxqfrabxVbzB8NCGXPBUhL-zAv2Br30mxBhUerv4bq8Z0Wz2GiwooBYWSmvJpFlWxya_qCLAwzggFJhihtYS96uYD3LcQ$ Division IFP Desktop URL: https://rifp.ml3ds-icon.com/#/floorplan/272954 Division Floor Plan Images:

Upcoming Events

See more events  »
Floor Plans

Floorplan Options for Your New Home

The Pizarro I accommodates a variety of household living arrangements with its highly desired flexibility and modern design. Explore the many possibilities in the popular Pizarro I plan.

Show Floorplan

Your home personalized to your tastes

This plan offers numerous opportunities to tailor your home to your specific tastes. Check out some of these options below, and explore further in our online Design Studio.

Visit a Design Studio

The home plan that's right for you

The following plans can be personalized for you and built in this community.

Plan Pizarro I - B

School District Del Valle ISD

Estimated Move in Date Ready Now

Bed 4

Bath 3

Garage 2

Sq Ft 2,054

Homesite 1108

Ready to plan a visit? We can help

Send us your preferred time to stop by and a sales representative will take care of the rest

Privacy Policy

Thank You

Our sales representative will be in touch with you shortly to confirm appointment details

Create an account in 30 seconds

Save your favorite communities, homes, and searches to help you find the home of your dreams. All you need is a password.

Password must be at least 8 characters and contain at least 3 of these character types.

Other Communities With This Plan